IMMOBILIERE 3F
Appartement 5 pièce(s)
598 860 €*
Appartement 5 pièce(s)
92130 ISSY LES MOULINEAUX
15,1921,23 ESPLANADE RAOUL FOLLEREAU<§>- 5 pièce(s)
- 104 m2
- Non renseigné
RÉFÉRENCE : 2382L-0086
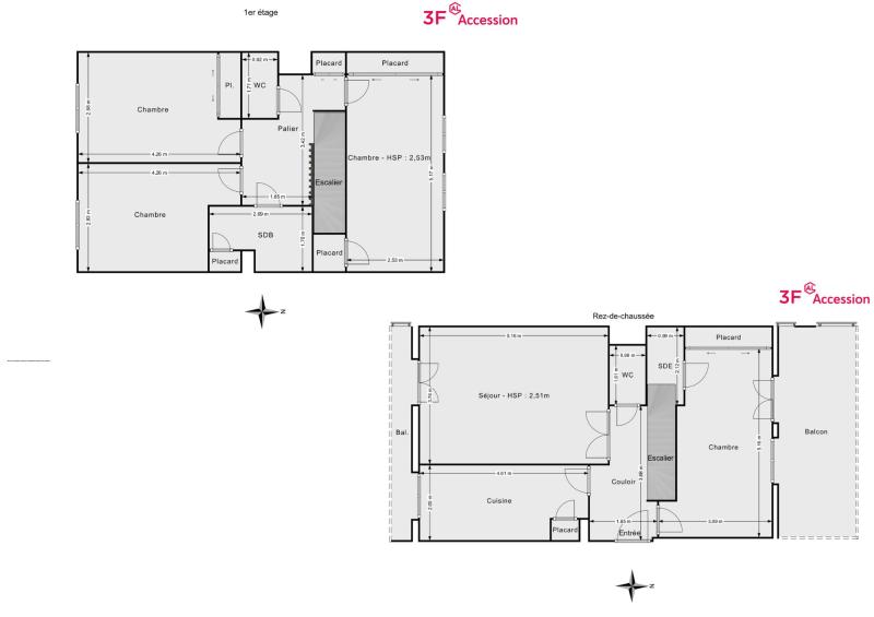
Appartement situé à Issy-les-Moulineaux dans une résidence avec stationnement en sous-sol. Cet appartement de 5 pièces d’une surface de 104,20 m² (loi Carrez) comprend un séjour, une cuisine, plusieurs chambres, une salle de bains, une salle d’eau, un WC ainsi qu’un balcon. Le bien est vendu au prix de 598 860 €, stationnement inclus. Chauffage et production d’eau chaude : individuel électrique. Taxe foncière estimée : 1 350 €. Montant estimatif des charges de copropriété : 3 420 € par an, soit 285 € par mois. Copropriété de 88 lots principaux, absence de procédure en cours.
Visite Virtuelle : https://my.matterport.com/show/?m=Yf17NVVaoHj
Informations sur les risques disponibles sur : www.georisques.gouv.fr. Visites uniquement sur rendez-vous. Dépôt des offres avec dossier complet auprès du commercialisateur. Les offres prioritaires doivent être déposées dans le mois suivant la dernière publicité légale, par mail, en main propre ou par tout autre moyen. Prix et conditions soumis à ressources, selon l’article L443-11 et suivants du Code de la Construction et de l’Habitation (CCH). Logement commercialisé par TRANSACTIF IMMOBILIER - Clémence BOCHE
Appartement situé à Issy-les-Moulineaux dans une résidence avec stationnement en sous-sol. Cet appartement de 5 pièces d’une surface de 104,20 m² (loi Carrez) comprend un séjour, une cuisine, plusieurs chambres, une salle de bains, une salle d’eau, un WC ainsi qu’un balcon. Le bien est vendu au prix de 598 860 €, stationnement inclus. Chauffage et production d’eau chaude : individuel électrique. Taxe foncière estimée : 1 350 €. Montant estimatif des charges de copropriété : 3 420 € par an, soit 285 € par mois. Copropriété de 88 lots principaux, absence de procédure en cours.
Visite Virtuelle : https://my.matterport.com/show/?m=Yf17NVVaoHj
Informations sur les risques disponibles sur : www.georisques.gouv.fr. Visites uniquement sur rendez-vous. Dépôt des offres avec dossier complet auprès du commercialisateur. Les offres prioritaires doivent être déposées dans le mois suivant la dernière publicité légale, par mail, en main propre ou par tout autre moyen. Prix et conditions soumis à ressources, selon l’article L443-11 et suivants du Code de la Construction et de l’Habitation (CCH). Logement commercialisé par TRANSACTIF IMMOBILIER - Clémence BOCHE
Performance énergétique
* Dont émissions de gaz à effet de serre

Estimation des coûts annuels d'énergie du logement
Les coûts sont estimés en fonction des caractéristiques de votre logement et pour une utilisation standard sur 5 usages : chauffage, eau chaude sanitaire, climatisation, éclairages et auxiliaires.
Entre 1 790 € et 2 470 € par an
Prix moyens des énergies indexées au 1er janvier 2023 (abonnements compris)
| Chauffage | Individuel Elec |
| Ascenseurs | Oui |
| Accessibilité Handicapé | NR |
| Jardins privatifs | Non |
| Nombre de logements | 88 |
| Nombre de bâtiments/maisons | 1 |
| Boxes | 1 |
| Parkings souterrains | 88 |
| Parkings aériens | 0 |
Transports
Ecoles
Commerces
* Informations et photos non contractuelles susceptibles d'être modifiées sans préavis.