Chargement de la carte...
IMMOBILIERE 3F
Appartement 1 pièce(s)
188 530 €*

Appartement 1 pièce(s)

92150 SURESNES

ZAC DES CHENES<§>27 ROUTE DES FUSILLES DE LA RESISTANCE<§>
TRANSACTIF IMMOBILIER
01 83 77 31 39
www.transactif-immobilier.fr/
  • 1 pièce(s)


  • 30 m2


  • Non renseigné
REFERENCE S067L-0019

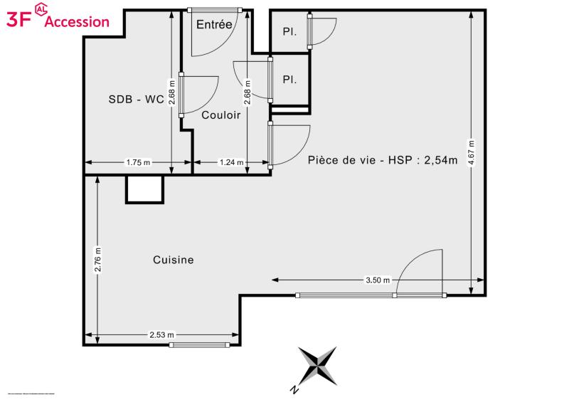
 Immobilière 3F vous propose un appartement 1 pièce situé à Suresnes (92) au prix de 188 530€. Ce studio de 30,55m² loi Carrez avec balcon est situé au 3ème étage d'une résidence avec ascenseur. Il dispose également d'un stationnement privatif sécurisé en sous-sol.

Estimation des charges annuelles de copropriété : 1980€.
Estimation de la taxe foncière : 900€.
Nombre de lot au sein de la copropriété : 32.
Pas de procédure en cours.

Modalités de visite et candidature : Visites sur rendez-vous avec notre commercialisateur.
Dossier de candidature : À fournir avec pièces justificatives.
Délai des offres prioritaires : 1 mois après la dernière publication légale.
Soumission des offres : Par mail, en mains propres ou selon les modalités indiquées.
Conditions : Prix et vente soumis à des critères de ressources (article L443-11 et suivants du CCH).

Logement commercialisé par Transactif Immobilier - Clémence Boche.

Performance énergétique
 
Diagnostic DPE
* Dont émissions de gaz à effet de serre
Diagnostic GES
ChauffageUrbain coll
AscenseursOui
Accessibilité HandicapéNR
Jardins privatifsNR
Nombre de logements32
Nombre de bâtiments/maisons1
Boxes0
Parkings souterrains32
Parkings aériens0
Transports
SNCF Suresnes Mont-Valérien / le Défense 4mn
Suresnes Mont-Valérien / Paris St Lazare 17mn
Réseau de bus communal et intercommunal
A 10mn de Paris par la D985
Ecoles
Maternelles et primaires à proximité
Collèges : 3
Lycées : 2 (dont 1 professionnel)
Commerces
Marché couvert Zola les mercredi et samedi de 8h à 13h
Marché Caron les jeudi et dimanche de 8h à 13h
Tous commerces de proximité
3 supermarchés
* Informations et photos non contractuelles susceptibles d'être modifiées sans préavis.