Chargement de la carte...
3F SEINE ET MARNE
Appartement 3 pièce(s)
121 560 €*

Appartement 3 pièce(s)

77120 COULOMMIERS

1 ALLEE DES ROSES<§>
TRANSACTIF IMMOBILIER
01 83 77 31 39
www.transactif-immobilier.fr/
  • 3 pièce(s)


  • 70 m2


  • Non renseigné
REFERENCE 8174L-0016.

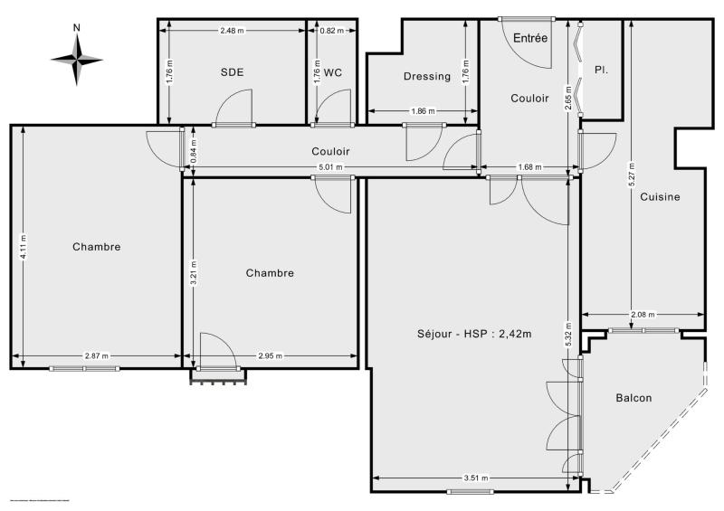
Immobilière 3F commercialise un spacieux appartement de 3 pièces, idéalement situé au 1er étage d’une copropriété calme (sans ascenseur).
Il offre de beaux volumes avec une surface généreuse de 70,55 m², et bénéficie d’une excellente luminosité naturelle qui rend chaque pièce agréable à vivre.
L’appartement se compose d’une entrée avec placard, d’un séjour lumineux et spacieux, d’une cuisine indépendante, de deux chambres confortables, ainsi qu’une salle de bain fonctionnelle.
Un stationnement extérieur est inclus, un véritable avantage au quotidien.

VISITE VIRTUELLE : https://my.matterport.com/show/?m=6zcgDMEdFGe

Atouts incontournables :
  • À seulement 8 minutes à pied de la gare de Coulommiers (ligne SNCF P) pour des déplacements facilités
  • Proche des commerces et écoles
  • Situé dans une ville dynamique, idéale pour toute la famille

Chauffage et production d’eau chaude : collectif gaz. 
Estimation charges annuelles de copropriété : 2 100 €.
Nombre de lots dans la copropriété : 150. Pas de procédure en cours.
Estimation taxe foncière : 1 150 €.
Les informations sur les risques auxquels ce bien est exposé sont disponibles sur le site Géorisques : www.georisques.gouv.fr
.
MODALITES DE VISITES ET DE REMISE DES OFFRES D’ACHAT :
Visites sur rendez-vous, renseignements et dépôt des candidatures avec dossier complet en contactant le commercialisateur.
Délais de remise des offres prioritaires : 1 mois à compter de la dernière publicité légale.

Logement commercialisé par TRANSACTIF IMMOBILIER - Assous Julie.

Performance énergétique
 
Diagnostic DPE
Diagnostic GES
ChauffageCollectif Gaz
AscenseursNon
Accessibilité HandicapéNR
Jardins privatifsnon
Nombre de logements150
Nombre de bâtiments/maisons11
Boxes1
Parkings souterrains149
Parkings aériens120
Transports
GARE SNCF – Coulommiers / Paris gare de l’Est: 1h10
Services de bus interurbains
A 55mn de Paris par l’autoroute A4
Ecoles
Maternelles 1
Primaires 2 (1 privée)
Collège 2 (1 privé)
Commerces
Tous commerces de proximité
1 hypermarché, 2 supermarchés
Marché couvert (mercredi et dimanche)
* Informations et photos non contractuelles susceptibles d'être modifiées sans préavis.