Chargement de la carte...
IMMOBILIERE 3F
Pavillon 4 pièce(s)
251 050 €*

Pavillon 4 pièce(s)

78260 ACHERES

RUE DESMOULIN<§>
TRANSACTIF IMMOBILIER
01 83 77 31 39
www.transactif-immobilier.fr/
  • 4 pièce(s)


  • 79 m2


  • Non renseigné
RÉFÉRENCE : T769L-0041 –

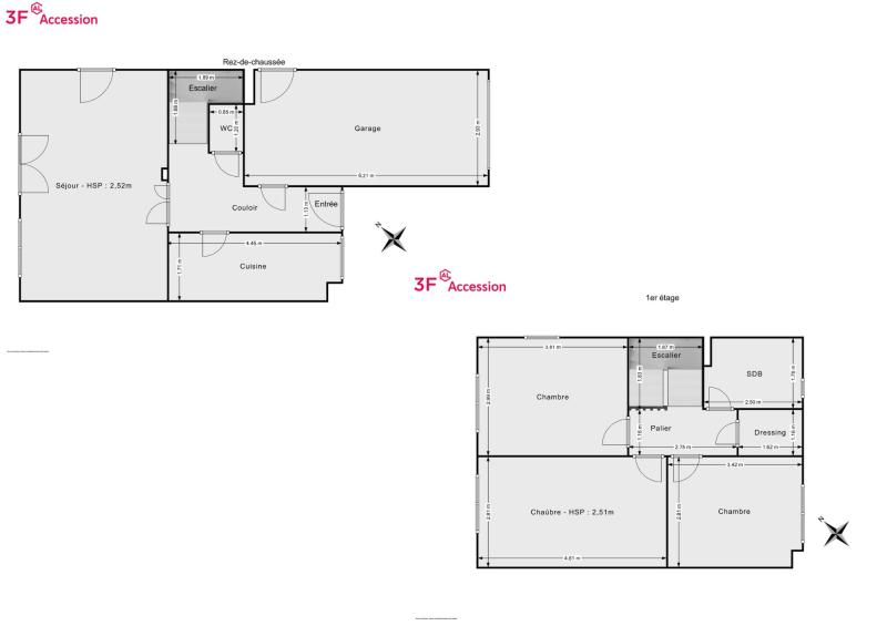
IMMOBILIÈRE 3F propose un pavillon de 4 pièces situé à Achères d’une surface de 79 m², disposant d’un garage (stationnement) et d’une terrasse. Ce bien comprend une entrée, un séjour, une cuisine, trois chambres, une salle de bains et un WC.
Visite virtuelle : https://my.matterport.com/show/?m=sLWVf5Q1FsF
La taxe foncière est estimée à 1 300 € et les charges de copropriété s’élèvent à 600 € par an. Informations sur les risques disponibles sur www.georisques.gouv.fr. Modalités de visites et remise des offres d’achat : visites sur rendez-vous, dépôt des candidatures avec dossier complet auprès du commercialisateur. Offres prioritaires à déposer dans le mois suivant la dernière publicité légale, par mail, en main propre ou par tout autre moyen. Prix et conditions soumis à ressources selon l’article L443-11 et suivants du CCH.
Ce logement est commercialisé par TRASACTIF – Julie Assous.

Performance énergétique
 
Diagnostic DPE
Diagnostic GES
ChauffageGaz individuel
AscenseursNon
Accessibilité HandicapéNR
Jardins privatifs
Nombre de logements48
Nombre de bâtiments/maisons0
Boxes34
Parkings souterrains0
Parkings aériens0
Transports
SNCF gare d'ACHERES-VILLE par le RER A / Paris St Lazare 30min.
Distance : de la gare d'Achères-Ville 500 mètres de la résidence.
Service de bus interurbains
A 30min de Paris par les autoroutes A1 - A13 et N184
Ecoles
8 écoles maternelles
6 écoles élémentaires
1 collège
1 lycée
Commerces
Tous commerces de proximité
Marché d'Achères le mercredi et samedi matin, Place du Marché.
Hypermarché et supermarchés
* Informations et photos non contractuelles susceptibles d'être modifiées sans préavis.