IMMOBILIERE 3F
Appartement 3 pièce(s)
342 740 €*
Appartement 3 pièce(s)
94270 LE KREMLIN BICETRE
10 RUE EDOUARD-VAILLANT<§>- 3 pièce(s)
- 70 m2
- Non renseigné
REFERENCE 2638L-0211.
IMMOBILIÈRE 3F propose un appartement 3 pièces dans une résidence sécurisée avec espaces verts, en centre-ville et à proximité de toutes commodités (écoles, commerces, etc.).
Bien desservi par les transports, il se situe à 15 minutes de Paris via la ligne 7 du métro (Kremlin- Bicêtre), bénéficie d’un service de bus interurbains et de la proximité du boulevard périphérique.
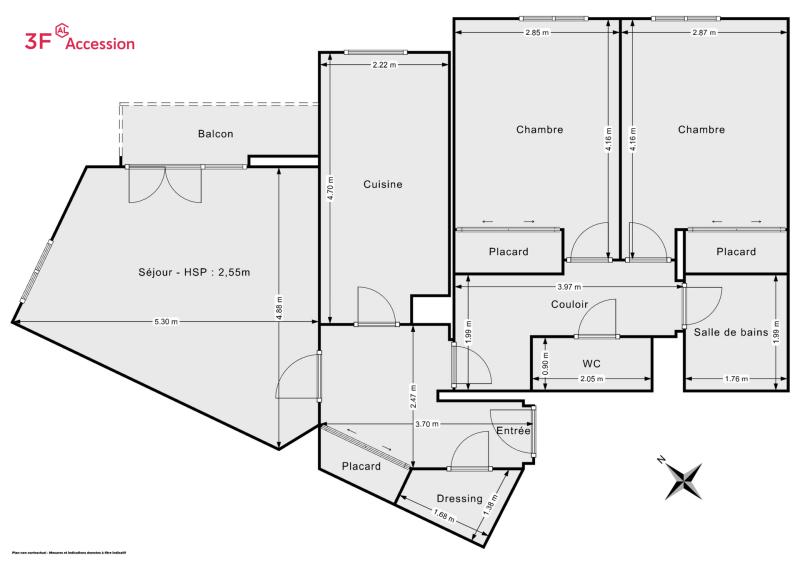
Cet appartement 3 pièces de 70,15m² Loi Carrez se situe au 1er étage avec ascenseur. Il comprend : une entrée avec placard et dressing, un séjour prolongé d'un balcon, une cuisine séparée, deux chambres dotées de placards, une salle de bain et des WC séparés, une cave et une place de stationnement sécurisée en sous-sol.
Production d’eau chaude et chauffage individuels au gaz.
La copropriété comprend 78 lots principaux et ne fait l’objet d’aucune procédure en cours.
Estimation du montant des charges de copropriété : 1 940 € / an soit 162 € / mois.
Estimation de la Taxe Foncière : 2 250 €.
Visite virtuelle : https://my.matterport.com/show/?m=uwer8GPfviH
Les informations sur les risques sont accessibles sur www.georisques.gouv.fr. Les visites se font sur rendez-vous et les candidatures, accompagnées d’un dossier complet, doivent être adressées au commercialisateur. Le délai de remise des offres prioritaires est d’un mois à compter de la dernière publicité légale. Les offres peuvent être transmises par mail, en main propre ou par tout autre moyen, et sont soumises à condition de ressources conformément aux dispositions de l’article L443-11 et suivants du CCH.
Logement commercialisé par TRANSACTIF IMMOBILIER - Morgane Martinau.
IMMOBILIÈRE 3F propose un appartement 3 pièces dans une résidence sécurisée avec espaces verts, en centre-ville et à proximité de toutes commodités (écoles, commerces, etc.).
Bien desservi par les transports, il se situe à 15 minutes de Paris via la ligne 7 du métro (Kremlin- Bicêtre), bénéficie d’un service de bus interurbains et de la proximité du boulevard périphérique.
Cet appartement 3 pièces de 70,15m² Loi Carrez se situe au 1er étage avec ascenseur. Il comprend : une entrée avec placard et dressing, un séjour prolongé d'un balcon, une cuisine séparée, deux chambres dotées de placards, une salle de bain et des WC séparés, une cave et une place de stationnement sécurisée en sous-sol.
Production d’eau chaude et chauffage individuels au gaz.
La copropriété comprend 78 lots principaux et ne fait l’objet d’aucune procédure en cours.
Estimation du montant des charges de copropriété : 1 940 € / an soit 162 € / mois.
Estimation de la Taxe Foncière : 2 250 €.
Visite virtuelle : https://my.matterport.com/show/?m=uwer8GPfviH
Les informations sur les risques sont accessibles sur www.georisques.gouv.fr. Les visites se font sur rendez-vous et les candidatures, accompagnées d’un dossier complet, doivent être adressées au commercialisateur. Le délai de remise des offres prioritaires est d’un mois à compter de la dernière publicité légale. Les offres peuvent être transmises par mail, en main propre ou par tout autre moyen, et sont soumises à condition de ressources conformément aux dispositions de l’article L443-11 et suivants du CCH.
Logement commercialisé par TRANSACTIF IMMOBILIER - Morgane Martinau.
Performance énergétique
* Dont émissions de gaz à effet de serre

| Chauffage | Individuel Gaz |
| Ascenseurs | Oui |
| Accessibilité Handicapé | NR |
| Jardins privatifs | Non |
| Nombre de logements | 78 |
| Nombre de bâtiments/maisons | 1 |
| Boxes | 19 |
| Parkings souterrains | 109 |
| Parkings aériens | 0 |
Transports
Ecoles
Commerces
* Informations et photos non contractuelles susceptibles d'être modifiées sans préavis.