Chargement de la carte...
IMMOBILIERE 3F
Appartement 3 pièce(s)
1 470 € cc

Appartement 3 pièce(s)

92400 COURBEVOIE

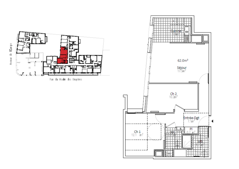
78 RUE DU MOULIN DES BRUYERES<§>
  • 3 pièce(s)


  • 62 m2


  • 7?me ?tage


  • Témoin ascenseur
    Oui



Dans résidence avec ascenseur au 7ème étage, bel appartement de type T3 de 62 m² comprenant entrée/dégagement avec placard, cuisine, séjour, 2 chambres, salle d'eau et WC séparés - Cellier sur le palier.
Charges mensuelles comprises : 224,79 € - Chauffage collectif au gaz. Eau individualisée non compris dans les charges, prévoir forfait provisions de 32,50 €.  Stationnement possible : 55,94 €/mois.

PLI 2015 * Logement intermédiaire géré par un bailleur social -attribution sous conditions de ressources. Les logements intermédiaires sont définis par la Loi de Finances du 1er janvier 2014. En contrepartie de plafonds de ressources à respecter, les loyers sont plafonnés et fixés par la loi, et en dessous du prix du marché

Performance énergétique
 
Diagnostic DPE
* Dont émissions de gaz à effet de serre
Diagnostic GES
Chauffagecollectif urbain
AscenseursOui
Accessibilité HandicapéNR
Jardins privatifs
Nombre de logements59
Nombre de bâtiments/maisons2
Boxes
Parkings souterrains59
Parkings aériens
FinancementLI15P
Date exploitation31/10/2022
Label QualitéRT 2012 -20% - NF HABITAT HQE
Transports
Transilien : Ligne L (Paris Saint-Lazare) - Gare de Bécon les Bruyères à 500 m
Réseau de bus : Arrêt de bus n°167, 178 et 278 « Moulin des Bruyères » dans un rayon de
100m
Accès aux autoroutes :
Accès rapide depuis Paris et la proche couronne via la N13, l A14 et l A86
Ecoles
12 crèches collectives et 12 crèches privées
1 Relai Assistantes maternelles
35 écoles maternelles et élémentaires
5 collèges
3 lycées
Commerces
A 1,5 km du centre commercial Charras et 2,8 km du centre commercial Les Quatre Temps
A 3 mn à pied du supermarché MONOPRIX
Commerces de proximité (boulangerie, restaurants, médecins, pharmacie...)
4 marchés de proximité de 8h à 13h ou de 11h à 20h
* Informations et photos non contractuelles susceptibles d'être modifiées sans préavis.