3F SEINE ET MARNE
Appartement 4 pièce(s)
142 190 €*
Appartement 4 pièce(s)
77310 ST FARGEAU PONTHIERRY
1 MAIL DU MOULIN CLAIR<§>- 4 pièce(s)
- 77 m2
- Non renseigné
REFERENCE : B143L-0068
TRANSPORTS : RER D Gare de St Fargeau / RER C Juvisy / Paris gare d’Austerlitz 1h /Autre gare : SNCF Ponthierry - Pringy / Services de bus interurbains / A 40mn de Paris par l’autoroute A6.
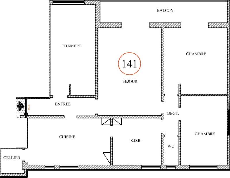
Cet Appartement de 4 pièces d’une surface de 77m² situé au 2ème étage, comprend une entrée, un séjour donnant sur balcon, une cuisine, trois chambres, une salle de bains, un wc, une cave et une place de stationnement.
Visite virtuelle : https://view.ricoh360.com/54e4f811-89f0-46aa-a418-1c6a31468c93
Chauffage et production d’eau chaude : individuel gaz
Copropriété de 74 lots principaux. Absence de procédure en cours.
Charges de copropriété : 4 130 €/an (eau chaude et chauffage inclus).
Taxe foncière : 1 300 €.
Les informations sur les risques auxquels ce bien est exposé sont disponibles sur le site Géorisques : www.georisques.gouv.fr
MODALITES DE VISITES ET DE REMISE DES OFFRES D’ACHAT
Visites sur rendez-vous, renseignements et dépôt des candidatures avec dossier complet en contactant le commercialisateur.
Délais de remise des offres prioritaires* : 1 mois à compter de la dernière publicité légale.
Modalité de remise des offres* : Par mail, remise en main propre ou par tout autre moyen.
Offre et prix soumis à condition de ressources*
* Les délais de remise de offres, les priorités des candidatures, le prix et les conditions de ressources sont établis conformément aux dispositions de l’article L443-11 et suivants du CCH.
Logement commercialisé par QUADRAL TRANSACTIONS - Didier Gilormini.
Cet Appartement de 4 pièces d’une surface de 77m² situé au 2ème étage, comprend une entrée, un séjour donnant sur balcon, une cuisine, trois chambres, une salle de bains, un wc, une cave et une place de stationnement.
Visite virtuelle : https://view.ricoh360.com/54e4f811-89f0-46aa-a418-1c6a31468c93
Chauffage et production d’eau chaude : individuel gaz
Copropriété de 74 lots principaux. Absence de procédure en cours.
Charges de copropriété : 4 130 €/an (eau chaude et chauffage inclus).
Taxe foncière : 1 300 €.
Les informations sur les risques auxquels ce bien est exposé sont disponibles sur le site Géorisques : www.georisques.gouv.fr
MODALITES DE VISITES ET DE REMISE DES OFFRES D’ACHAT
Visites sur rendez-vous, renseignements et dépôt des candidatures avec dossier complet en contactant le commercialisateur.
Délais de remise des offres prioritaires* : 1 mois à compter de la dernière publicité légale.
Modalité de remise des offres* : Par mail, remise en main propre ou par tout autre moyen.
Offre et prix soumis à condition de ressources*
* Les délais de remise de offres, les priorités des candidatures, le prix et les conditions de ressources sont établis conformément aux dispositions de l’article L443-11 et suivants du CCH.
Logement commercialisé par QUADRAL TRANSACTIONS - Didier Gilormini.
Performance énergétique
* Dont émissions de gaz à effet de serre

Estimation des coûts annuels d'énergie du logement
Les coûts sont estimés en fonction des caractéristiques de votre logement et pour une utilisation standard sur 5 usages : chauffage, eau chaude sanitaire, climatisation, éclairages et auxiliaires.
Entre 1 500 € et 2 070 € par an
Prix moyens des énergies indexées au 1er janvier 2021 (abonnements compris)
| Chauffage | Individuel Gaz |
| Ascenseurs | Non |
| Accessibilité Handicapé | NR |
| Jardins privatifs | Non |
| Nombre de logements | 74 |
| Nombre de bâtiments/maisons | 1 |
| Boxes | 18 |
| Parkings souterrains | |
| Parkings aériens |
Transports
Ecoles
Commerces
* Informations et photos non contractuelles susceptibles d'être modifiées sans préavis.