IMMOBILIERE 3F
Appartement 4 pièce(s)
152 450 €*
Appartement 4 pièce(s)
78270 BONNIERES SUR SEINE
ZAC DU MOULIN A VENT<§>- 4 pièce(s)
- 73 m2
- Non renseigné
REFERENCE : S042L-0015
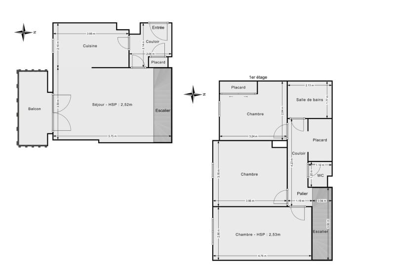
Cet Appartement en duplex de 4 pièces d’une surface de 73,55 m² situé au 1er étage, comprend une entrée, un séjour donnant sur balcon, une cuisine, trois chambres, une salle de bains, un wc, et une place de stationnement .
Visite virtuelle : https://my.matterport.com/show/?m=Rg5DUTh4uo7
TRANSPORTS : SNCF - Gare de Bonnières sur Seine / Paris St Lazare : 1h50 - A 50 min de Paris par l'autoroute A13 - Service de bus et cars interurbains et Service de ramassage scolaire.
Chauffage et production d’eau chaude : individuel électrique
Copropriété de 17 lots principaux. Absence de procédure en cours.
Taxe foncière : 1500€ et charges de copropriété : 1694,8€
Les informations sur les risques auxquels ce bien est exposé sont disponibles sur le site Géorisques : www.georisques.gouv.fr
MODALITES DE VISITES ET DE REMISE DES OFFRES D’ACHAT
Visites sur rendez-vous, renseignements et dépôt des candidatures avec dossier complet en contactant le commercialisateur.
Délais de remise des offres prioritaires* : 1 mois à compter de la dernière publicité légale.
Modalité de remise des offres* : Par mail, remise en main propre ou par tout autre moyen.
Offre et prix soumis à condition de ressources*
* Les délais de remise de offres, les priorités des candidatures, le prix et les conditions de ressources sont établis conformément aux dispositions de l’article L443-11 et suivants du CCH.
Logement commercialisé par QUADRAL : ANAIS WALLON
Cet Appartement en duplex de 4 pièces d’une surface de 73,55 m² situé au 1er étage, comprend une entrée, un séjour donnant sur balcon, une cuisine, trois chambres, une salle de bains, un wc, et une place de stationnement .
Visite virtuelle : https://my.matterport.com/show/?m=Rg5DUTh4uo7
TRANSPORTS : SNCF - Gare de Bonnières sur Seine / Paris St Lazare : 1h50 - A 50 min de Paris par l'autoroute A13 - Service de bus et cars interurbains et Service de ramassage scolaire.
Chauffage et production d’eau chaude : individuel électrique
Copropriété de 17 lots principaux. Absence de procédure en cours.
Taxe foncière : 1500€ et charges de copropriété : 1694,8€
Les informations sur les risques auxquels ce bien est exposé sont disponibles sur le site Géorisques : www.georisques.gouv.fr
MODALITES DE VISITES ET DE REMISE DES OFFRES D’ACHAT
Visites sur rendez-vous, renseignements et dépôt des candidatures avec dossier complet en contactant le commercialisateur.
Délais de remise des offres prioritaires* : 1 mois à compter de la dernière publicité légale.
Modalité de remise des offres* : Par mail, remise en main propre ou par tout autre moyen.
Offre et prix soumis à condition de ressources*
* Les délais de remise de offres, les priorités des candidatures, le prix et les conditions de ressources sont établis conformément aux dispositions de l’article L443-11 et suivants du CCH.
Performance énergétique
* Dont émissions de gaz à effet de serre

Estimation des coûts annuels d'énergie du logement
Les coûts sont estimés en fonction des caractéristiques de votre logement et pour une utilisation standard sur 5 usages : chauffage, eau chaude sanitaire, climatisation, éclairages et auxiliaires.
Entre 1 120 € et 1 570 € par an
Prix moyens des énergies indexées au 1er janvier 2023 (abonnements compris)
| Chauffage | Electrique ind |
| Ascenseurs | Non |
| Accessibilité Handicapé | NR |
| Jardins privatifs | NR |
| Nombre de logements | 17 |
| Nombre de bâtiments/maisons | 2 |
| Boxes | 22 |
| Parkings souterrains | 0 |
| Parkings aériens | 0 |
Transports
Ecoles
Commerces
* Informations et photos non contractuelles susceptibles d'être modifiées sans préavis.