IMMOBILIERE 3F
Appartement 2 pièce(s)
138 980 €*
Appartement 2 pièce(s)
78114 MAGNY LES HAMEAUX
8 SQUARE DES GENETS<§>- 2 pièce(s)
- 49 m2
- Non renseigné
REFERENCE 1709L-0021
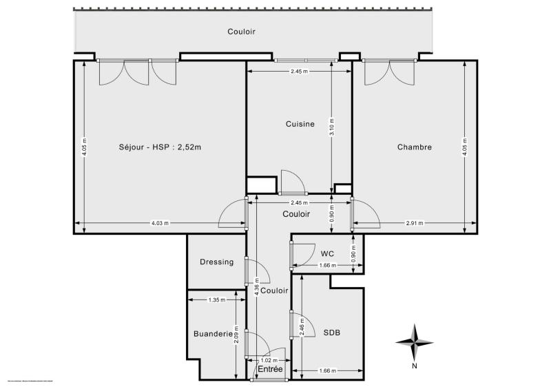
MAGNY-LES-HAMEAUX (78114) – Appartement T2 de 49,80 m avec ascenseur
Situé dans une résidence sécurisée avec ascenseur, cet appartement de 2 pièces d’une superficie de 49,80 m offre un agencement fonctionnel et confortable. Il se compose d’un séjour lumineux, d’une cuisine, d’une chambre ainsi que d’une salle de bains et de toilettes.
Le bien bénéficie d’un environnement calme et agréable, à proximité immédiate des établissements scolaires, des commerces et des services du quotidien, offrant un cadre de vie pratique.
Le chauffage et la production d’eau chaude sont assurés par un système collectif au gaz.
Visite virtuelle disponible : https://my.matterport.com/show/?m=Ag2o63BLovY
Charges de copropriété : 2 152 € par an
Taxe foncière : 800 €
Nombre de lots principaux : 48
Absence de procédure en cours.
Proximités et transports
Le secteur est desservi par plusieurs lignes de bus permettant de rejoindre les gares environnantes, notamment Saint-Rémy-lès-Chevreuse (RER B), facilitant l’accès à Paris et aux pôles d’activité. L’accès aux axes routiers principaux permet également de rejoindre rapidement les communes voisines et les zones économiques du secteur de Saint-Quentin-en-Yvelines.
Les informations sur les risques auxquels ce bien est exposé sont disponibles sur le site Géorisques : www.georisques.gouv.fr
MODALITÉS DE VISITES ET DE REMISE DES OFFRES D’ACHAT
Visites sur rendez-vous. Renseignements et dépôt des candidatures avec dossier complet auprès du commercialisateur.
Les offres d’achat prioritaires sont à transmettre dans un délai d’un mois à compter de la dernière publicité légale, par mail, remise en main propre ou tout autre moyen.
Offre et prix soumis à conditions de ressources, conformément aux dispositions de l’article L443-11 et suivants du Code de la Construction et de l’Habitation.
Ce bien est commercialisé par TRANSACTIF IMMOBILIER – Julie Assous
MAGNY-LES-HAMEAUX (78114) – Appartement T2 de 49,80 m avec ascenseur
Situé dans une résidence sécurisée avec ascenseur, cet appartement de 2 pièces d’une superficie de 49,80 m offre un agencement fonctionnel et confortable. Il se compose d’un séjour lumineux, d’une cuisine, d’une chambre ainsi que d’une salle de bains et de toilettes.
Le bien bénéficie d’un environnement calme et agréable, à proximité immédiate des établissements scolaires, des commerces et des services du quotidien, offrant un cadre de vie pratique.
Le chauffage et la production d’eau chaude sont assurés par un système collectif au gaz.
Visite virtuelle disponible : https://my.matterport.com/show/?m=Ag2o63BLovY
Charges de copropriété : 2 152 € par an
Taxe foncière : 800 €
Nombre de lots principaux : 48
Absence de procédure en cours.
Proximités et transports
Le secteur est desservi par plusieurs lignes de bus permettant de rejoindre les gares environnantes, notamment Saint-Rémy-lès-Chevreuse (RER B), facilitant l’accès à Paris et aux pôles d’activité. L’accès aux axes routiers principaux permet également de rejoindre rapidement les communes voisines et les zones économiques du secteur de Saint-Quentin-en-Yvelines.
Les informations sur les risques auxquels ce bien est exposé sont disponibles sur le site Géorisques : www.georisques.gouv.fr
MODALITÉS DE VISITES ET DE REMISE DES OFFRES D’ACHAT
Visites sur rendez-vous. Renseignements et dépôt des candidatures avec dossier complet auprès du commercialisateur.
Les offres d’achat prioritaires sont à transmettre dans un délai d’un mois à compter de la dernière publicité légale, par mail, remise en main propre ou tout autre moyen.
Offre et prix soumis à conditions de ressources, conformément aux dispositions de l’article L443-11 et suivants du Code de la Construction et de l’Habitation.
Ce bien est commercialisé par TRANSACTIF IMMOBILIER – Julie Assous
Performance énergétique
| Chauffage | Individuel Gaz |
| Ascenseurs | Non |
| Accessibilité Handicapé | NR |
| Jardins privatifs | Non |
| Nombre de logements | 73 |
| Nombre de bâtiments/maisons | 2 |
| Boxes | 0 |
| Parkings souterrains | 0 |
| Parkings aériens | 82 |
Transports
Ecoles
Commerces
* Informations et photos non contractuelles susceptibles d'être modifiées sans préavis.