Chargement de la carte...
IMMOBILIERE 3F
Appartement 2 pièce(s)
249 315 €*

Appartement 2 pièce(s)

78600 MAISONS LAFFITTE

35 AVENUE BELLEFORIÈRE<§>
QUADRAL TRANSACTIONS
01 87 27 07 01
www.quadral.fr/i3f
  • 2 pièce(s)


  • 45 m2


  • Non renseigné
RÉFÉRENCE : S037L-0010

IMMOBILIÈRE 3F propose un appartement de 2 pièces situé à Maisons-Laffitte, au deuxième étage d’une résidence avec un petit balcon offrant une vue sur la végétation.
 
Transports : RER A à 16 min de Paris, Transilien ligne L à 20 min de Paris, accès à Paris Porte Maillot en 20 min via les autoroutes A86 et A14. Aéroports à 40 min : Orly par les autoroutes A86 et A6, Roissy Charles de Gaulle par les autoroutes A86 et A1. Service de bus interurbain.

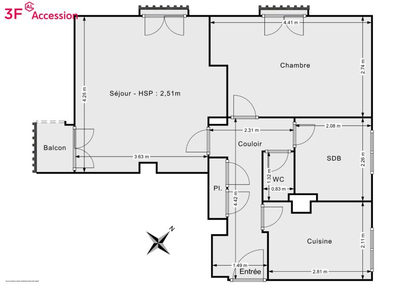
Cet appartement de 45 m² (loi Carrez) comprend une entrée, un séjour, une cuisine, une chambre, une salle de bains, un WC, un balcon, ainsi qu’une place de parking.

Chauffage et eau chaude collectifs gaz
Taxe foncière : 775 €. Montant des charges de copropriété : 2 128 €/an, soit 177,33 €/mois.
Aucune procédure en cours dans la copropriété.

Informations sur les risques disponibles sur www.georisques.gouv.fr.
Modalités de visites et remise des offres d’achat : visites sur rendez-vous, dépôt des candidatures avec dossier complet auprès du commercialisateur. Offres prioritaires à déposer dans le mois suivant la dernière publicité légale, par mail, en main propre ou par tout autre moyen.

Prix et conditions soumis à ressources selon l’article L443-11 et suivants du CCH.

Ce logement est commercialisé par QUADRAL - NATHALIE PUDLICKI

Performance énergétique
 
Diagnostic DPE
Diagnostic GES
ChauffageGaz coll
AscenseursNon
Accessibilité HandicapéNR
Jardins privatifsNR
Nombre de logements22
Nombre de bâtiments/maisons7
Boxes0
Parkings souterrains0
Parkings aériens22
Transports
A 16 min de Paris par le RER A
A 20 min de Paris par le Transilien, ligne L
A 20 min de Paris, Porte Maillot par les autoroutes A86 et A14
A 40 min des deux aéroports parisiens :
-Orly par les autoroutes A86 et A6
-Roissy Charles de Gaulle par les autoroutes A86 et A1
Service de bus interurbain
Ecoles
Ecoles maternelle : 6 publiques et 2 privées
Ecoles élémentaire : 4 publiques et 2 privées
Collèges : 2 publics et 1 privé
Lycée : 1 privé. Les lycéens désireux de se rendre en établissements publics sont accueillis
à Sartrouville
Etablissements d'enseignement spécialisé
Proche de Paris et de ses universités
Commerces
Marché chaque mercredi et samedi matin à la Halle du Marché
4 supermarchés
Tous commerces
* Informations et photos non contractuelles susceptibles d'être modifiées sans préavis.