3F SEINE ET MARNE
Appartement 4 pièce(s)
127 310 €*
Appartement 4 pièce(s)
77310 ST FARGEAU PONTHIERRY
1 MAIL DU MOULIN CLAIR<§>- 4 pièce(s)
- 77 m2
- Non renseigné
REFERENCE : B143L-0036
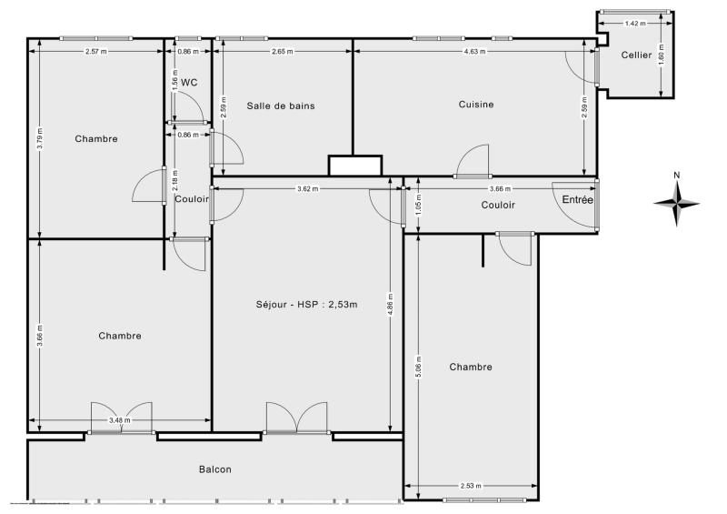
Cet appartement de 4 pièces d’une surface de 77m² au 2e étage comprend une entrée, un séjour, une cuisine, trois chambres, une salle de bains, un WC, et une place de stationnement ainsi qu'une cave.
TRANSPORTS :
RER D Gare Ponthierry-Pringy à 2 min pied
Bus : plusieurs lignes
En voiture accès rapide A5, N6
Chauffage et production d’eau chaude : Gaz
Charges de copropriété : 2 340 €
Taxe foncière :140 €
Les informations sur les risques auxquels ce bien est exposé sont disponibles sur le site Géorisques : www.georisques.gouv.fr
Visite virtuelle : https://my.matterport.com/show/?m=R7VdfEta7ee
MODALITÉS DE VISITES ET DE REMISE DES OFFRES D’ACHAT
Visites sur rendez-vous, renseignements et dépôt des candidatures avec dossier complet en contactant le commercialisateur.
Délais de remise des offres prioritaires* : 1 mois à compter de la dernière publicité légale. Modalité de remise des offres* : par mail, remise en main propre ou par tout autre moyen.
Offre et prix soumis à condition de ressources**Les délais de remise des offres, les priorités des candidatures, le prix et les conditions de ressources sont établis conformément aux dispositions de l’article L443-11 et suivants du CCH.
Logement commercialisé par QUADRAL - BRICE PREVITERA
Performance énergétique
* Dont émissions de gaz à effet de serre

Estimation des coûts annuels d'énergie du logement
Les coûts sont estimés en fonction des caractéristiques de votre logement et pour une utilisation standard sur 5 usages : chauffage, eau chaude sanitaire, climatisation, éclairages et auxiliaires.
Entre 1 440 € et 1 990 € par an
Prix moyens des énergies indexées au 1er janvier 2023 (abonnements compris)
| Chauffage | Individuel Gaz |
| Ascenseurs | Non |
| Accessibilité Handicapé | NR |
| Jardins privatifs | Non |
| Nombre de logements | 74 |
| Nombre de bâtiments/maisons | 1 |
| Boxes | 18 |
| Parkings souterrains | |
| Parkings aériens |
Transports
Ecoles
Commerces
* Informations et photos non contractuelles susceptibles d'être modifiées sans préavis.