3F SEINE ET MARNE
Appartement 3 pièce(s)
149 060 €*
Appartement 3 pièce(s)
77120 COULOMMIERS
1 ALLEE DES ROSES<§>- 3 pièce(s)
- 78 m2
- Non renseigné
REFERENCE 8174L-0043.
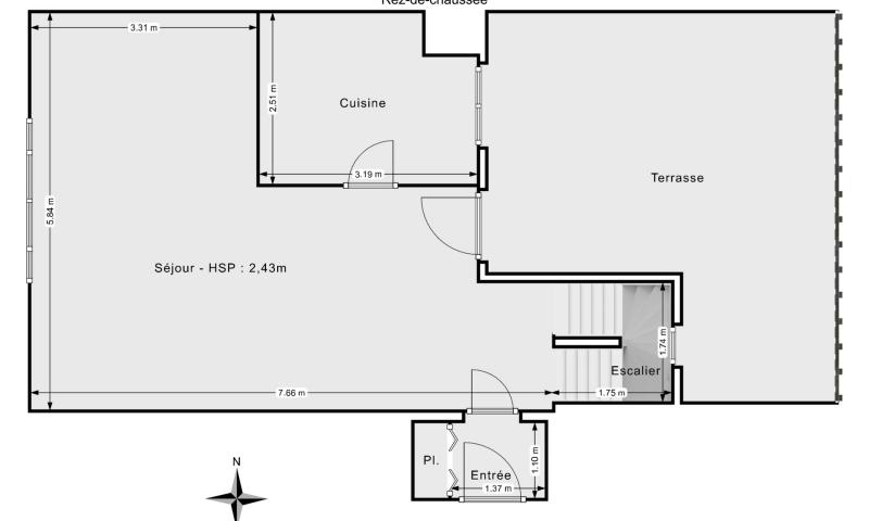
Immobilière 3F commercialise un appartement 3 pièces duplex de 78,10m² Loi Carrez à Coulommiers (77).
Cet appartement situé au 3e étage sans ascenseur se compose au rez-de-chaussée d’un séjour ouvert sur une grande terrasse et d’une cuisine séparée. A l'étage, il propose deux chambres, un dressing, une salle de bain et un WC séparé. En complément, le logement dispose d’un stationnement en sous-sol.
Transports : Gare SNCF (ligne transilien P), réseau de bus interurbains.
Scolarité : Ecoles maternelle, primaires, collèges
Commodités : Tous les services et commerces de proximité accessibles à pied. 3 supermarchés.
Cet appartement situé au 3e étage sans ascenseur se compose au rez-de-chaussée d’un séjour ouvert sur une grande terrasse et d’une cuisine séparée. A l'étage, il propose deux chambres, un dressing, une salle de bain et un WC séparé. En complément, le logement dispose d’un stationnement en sous-sol.
Transports : Gare SNCF (ligne transilien P), réseau de bus interurbains.
Scolarité : Ecoles maternelle, primaires, collèges
Commodités : Tous les services et commerces de proximité accessibles à pied. 3 supermarchés.
Visite virtuelle : https://my.matterport.com/show/?m=LfDDfuCkVdX
Chauffage et production d’eau chaude : collectif gaz.
Estimation charges annuelles de copropriété : 2 500€.
Nombre de lots dans la copropriété : 150. Pas de procédure en cours.
Estimation taxe foncière : 1 300€.
Les informations sur les risques auxquels ce bien est exposé sont disponibles sur le site Géorisques : www.georisques.gouv.fr
MODALITES DE VISITES ET DE REMISE DES OFFRES D’ACHAT :
Visites sur rendez-vous, renseignements et dépôt des candidatures avec dossier complet en contactant le commercialisateur.
Délais de remise des offres prioritaires : 1 mois à compter de la dernière publicité légale.
Logement commercialisé par TRANSACTIF - Assous Julie.
Performance énergétique
* Dont émissions de gaz à effet de serre

| Chauffage | Collectif Gaz |
| Ascenseurs | Non |
| Accessibilité Handicapé | NR |
| Jardins privatifs | non |
| Nombre de logements | 150 |
| Nombre de bâtiments/maisons | 11 |
| Boxes | 1 |
| Parkings souterrains | 149 |
| Parkings aériens | 120 |
Transports
Ecoles
Commerces
* Informations et photos non contractuelles susceptibles d'être modifiées sans préavis.